BON & KIN HOUSE
A three-generation family who lived in a densely populated area in Quoc Oai, a historic district but the new highly urbanized area of Hanoi. The design team decided to create a contemporary solution for this house in contrast with the surrounding neighborhoods.
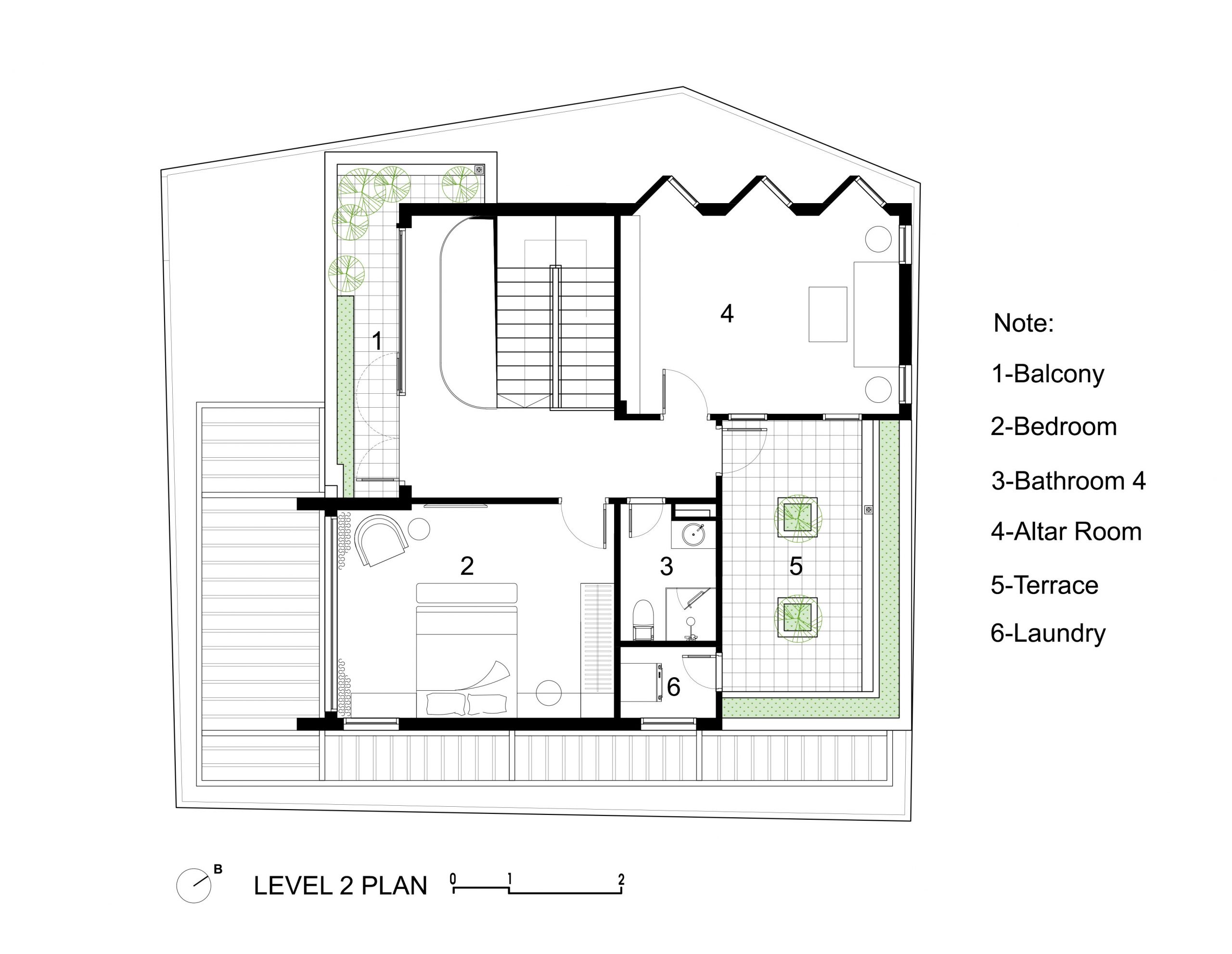
Facing south, the front of the house was kept partly closed, but mainly to keep the occupants open as a means of keeping the wonderful view. The large glass window lets the light flow overwhelmingly into all rooms. It helps the owner increase the spatial qualities of the interior and has the best view of the landscape neighborhood. The internal curtains are provided for additional sun protection and create a private indoor area. A north-facing garden is created at the back of the house to shade the house and improve its ventilation. In addition, the arrangement of opening windows from the four facades improves internal ventilation in the house. The right-side façade facing west has a polished concrete wall that protects the house from the heat without obstructing the views by skillful window arrangement. The zig-zag staircase turns corners with the bending glass handrails to match the curved skylight above and the 3rd floor-arched door. The curvaceous skylight provides abundant natural light from the roof to the ground floor. The natural light diffuses through its skylight in various angles, making space fun and intriguing. On the ground floor, combining the living room, dining room, and kitchen together in one open space that offers great flexibility for the owner. The biggest advantage is that the owner is able to socialize more easily with family and friends while cooking and keeping an eye on children while they are playing in the front garden. The living room faces the courtyard with a koi-fish pool of serenity overlooking a full glass door of impressive landscape. The kids’s and parents’s rooms are located on the 2nd floor so that they are able to spend every day together. The kids’ room has two colors: white and yellow, yellow colors make the kid’s room as refreshing, and cheerful. The 3rd floor is used for the altar room and guest room.
Overall, the house creates a calm atmosphere with clean lines and shapes. By creating contemporary architecture in contrast with old surroundings, the team aims to send a message: starting to progress towards the future but still preserving the past.
Completion: 2022
Scope of work: Architecture & Interior Design
Team: Pham Thanh Trung, Nguyen Tat Thanh, Nguyen Linh Hoat, Huynh Thanh Nha, Luong Tu Nhi
Client: Mr Dat
Location: Quoc Oai, Ha Noi
Photographs: Trieu Cien
All images courtesy of STD Design Consultant




























