CHIC VID HOUSE
Chic Vid House is a west-facing house located in the Go Vap neighborhood in a crowded urban area of Ho Chi Minh City, Vietnam. The house is composed of 5 floors on a narrow plot with a width of 3.9 m and a depth of 19.6m. It makes the front really thin, the design will easily fail if tackled in a common way. In the beginning, when we walked around the area, the design team didn’t expect much from an eye-catching façade. It’s difficult to do in that narrow area, but this is also about helping the landlord take full advantage of the expensive land left in town.
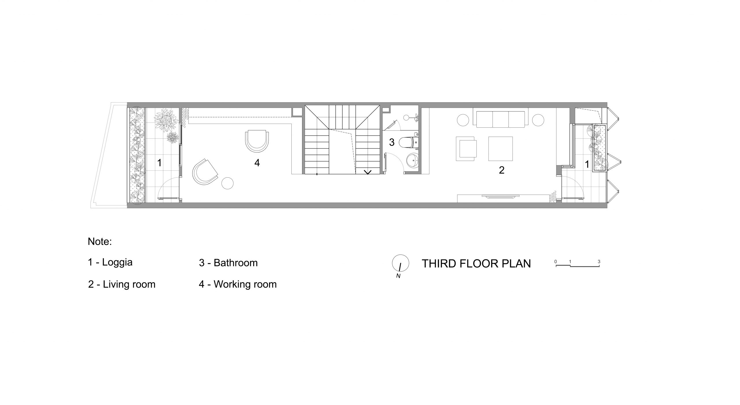
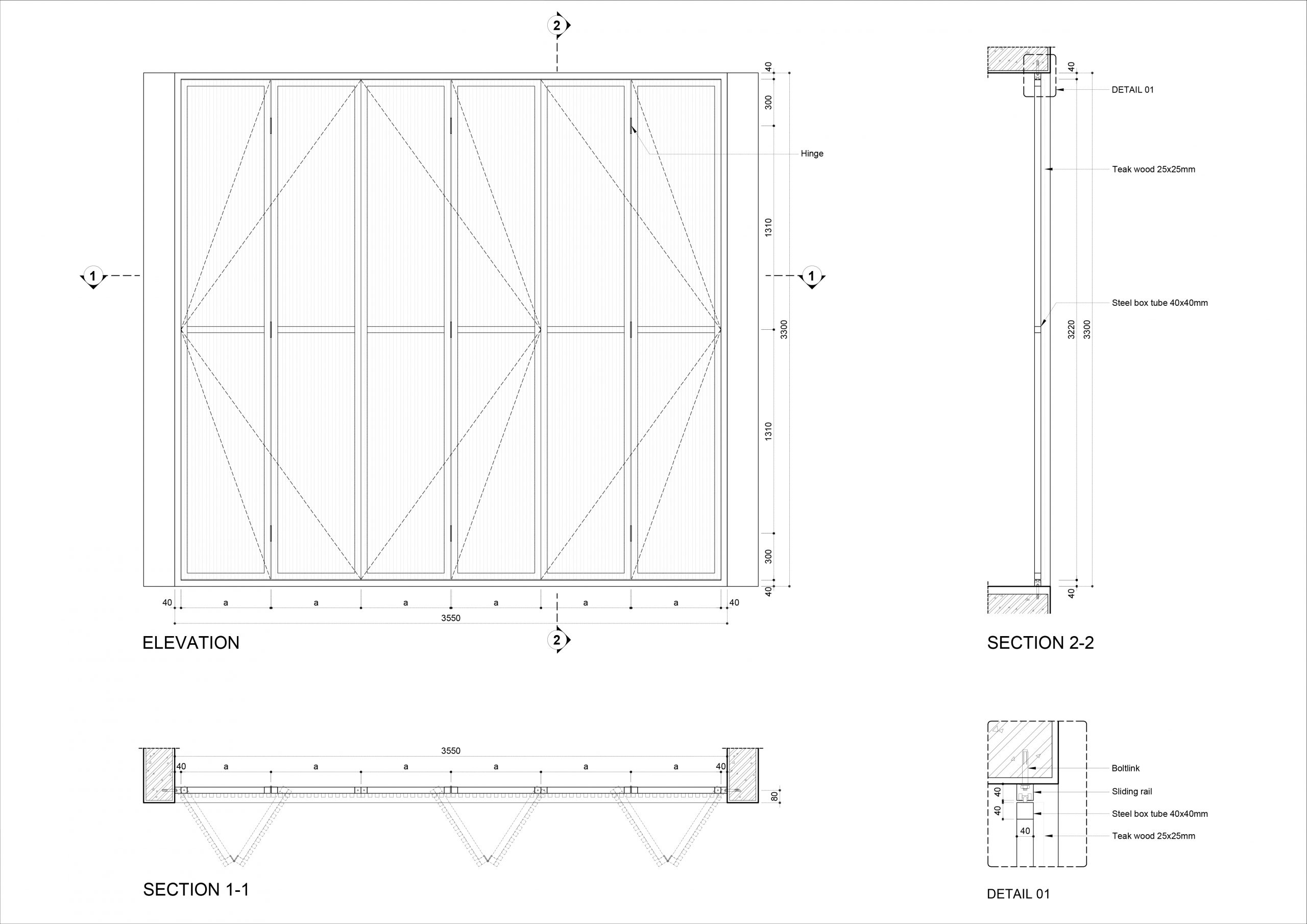
The house attracts the attention of passersby with the firmness and weight of simplicity. Foldable teak facades that can be opened and closed with sun protection, improving the house’s ventilation. Translucent teak facades are chosen not only to prevent direct sunlight but also to avoid vision loss. Plants are added to coat the sun’s heat with teak shutters. The laterite stone used for the facade is very popular in tropical countries like Vietnam with the function of self-regulating temperature. All materials are also used as an aesthetic way to enhance the rustic appearance of the façade. On the ground floor, a playground is arranged in the front to prevent children from playing outside unsafe vehicles. The main kitchen at the rear combined with the dining room helps adults to observe their children while playing at ease. The large glass doors provide a lovely view of the rear garden. The bedroom for the 2 kids on the back of the 2nd floor is designed with a round window to catch the sunrise. The round window allows plenty of natural light, an important ingredient in a kid’s development, and fresh air to flow into the room. The parent’s bedroom is on the same floor and it’s easier to account for the kids. All rooms are provided with as much greenery view and natural light as possible Some common areas such as working and living-room instead of below are moved to the higher level for a better view and to avoid the sensation of being cramped. The 3rd-floor living room is unusual but the biggest benefit is that takes full advantage of the surrounding neighborhood view and environment. when the landlord spends most of the time in these spaces, the light and electricity consumption will be reduced. A rectangular void on the 3rd-floor balcony is made to make space for the freshwater mangrove to grow through.
Those in urban areas often don’t have much open space. Then our team takes advantage of the rooftop to create a terrace at the rear with a small dining table that will be the extraordinary escape needed. Dining on the roof terrace is an unforgettable experience for the landlord, family, and friends up in the sky. “We hope to create a living space that encourages a simple, dynamic, and aesthetic life” the architect said.
Completion: 2023
Scope of work: Architecture & Interior Design
Lead: Pham Trung
Team: Nguyen Tat Thanh, Ba Dang
Client: Mr Nam
Location: Ho Chi Minh City, Vietnam
Photographs: Trieu Chien

All images courtesy of STD Design Consultant
































